PROJECTS

Back to Offices & Hotels projects list

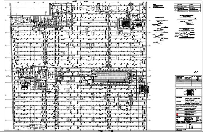
MALL BULGARIA Sofia, Bulgaria

Description
We have made CAD drawings for conceptual design and Tender documentation, Technical design, Shop drawing, quantity estimate and as build drawings. Estimate 90 000sq.m. Office building A - high 99m. Sprinkler installations by EN12845
Services
  • Plumbing
  • Fire Sprinkler by EN12845