Toggle navigation
HOME
ABOUT US
PROJECTS
CONTACTS
PROJECTS
BIM
STRUCTURAL
FIRE SPRINKLER
PLUMBING
HVAC
INFRASTRUCTURE
View projects
Infrastructure
Offices & Hotels
Residential
Hypermarkets & Industrial
Malls
MIXED use
Hypermarkets
Industrial
Malls
Infrastructure
Offices & Hotels
Industrial
Residential
Mixed use
View projects
View projects
PROJECTS / Kamenitza Hill
BIM
STRUCTURAL
Infrastructure
Offices & Hotels
Residential
Hypermarkets & Industrial
FIRE SPRINKLER
Malls
MIXED use
Hypermarkets
Industrial
PLUMBING
Malls
Infrastructure
Offices & Hotels
Industrial
Residential
Mixed use
HVAC
INFRASTRUCTURE
Back to #
projects list
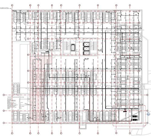
Kamenitza Hill
Plovdiv, Bulgaria
Description
About 14 000 m2 Office building 35m high and 28 500 m2 Residential buildings with 55 m high section .
Services
Structural
Plumbing
HVAC
Fire Sprinkler by EN12845