PROJECTS

Back to # projects list

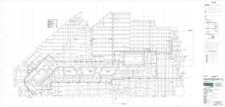
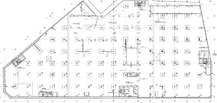
Mall Markovo Tepe Plovdiv, Bulgaria

Description
Total built-up area of 70 000 sq.m.; over 16,000 sq.m. leasing space; 100 store brand products of leading fashion companies; 500 parking spaces; Supermarket 2000 sq.m. area.
Services
  • Plumbing
  • Fire Sprinkler by EN12845
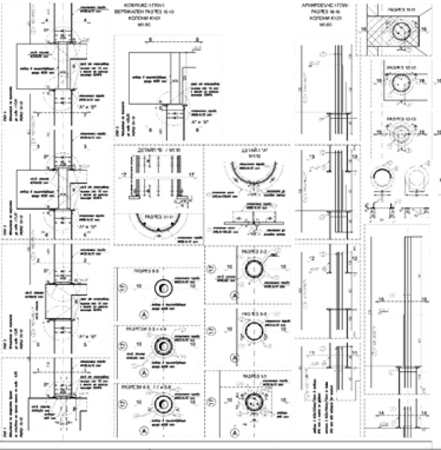
  • Structural